
岫巖縣體育館位于遼寧省鞍山市,占地7.92萬平方米,總建筑面積1.13萬平方米,形狀是矩形,可容納3000名觀眾,主要功能為比賽,兼顧體育娛樂、會議等功能,作為岫巖縣體育賽事開展及群眾文化生活的重要場所之一。

一、聲學裝飾方案
1、建筑聲學與裝飾的結合
良好的音質效果對于體育館來說是必須的,因為適當的語言清晰度是保證場所內正常使用的前提條件之一。聲學材料的合理布置是使場館音質改善的最有效的手段,建筑聲學與室內裝飾有機結合,裝飾性與實用性兼而有之。
本方案從建筑聲學角度介入設計,在建聲原理的基礎上通過嚴謹的計算,確定聲學裝飾材料的選型、布局和安裝構造,控制場所內的混響時間,為空間裝飾設計及施工工藝提供科學有效的依據。

2、場所聲學計算初始條件
體育館平面呈一矩形,剖面為不規則幾何形,館內頂面鋼架距離建筑地面最高高度為35m,縱長56.7m。館內有效容積為79185m3,總表面積為11340㎡,預計容納人數3000人。
二、頂面方案
體育館的使用要求和觀演要求決定了其最低凈高不會太低,這使得體育館容積偏大,室內混響時間更長,并且往往為了節省吊頂費用,減輕頂棚結構負荷,通常會采用暴露網架的做法,沒有了整體性的吊頂對中低頻吸收,達到同樣的混響時間需要用更多的吸音材料。因此,對于頂棚的聲學處理,以利用高效率的吸音材料進行吸聲處理為主。設計擬用強吸聲的空間吸聲體吊掛于頂棚鋼架之下,距離鋼架1m,使用數量1800㎡。

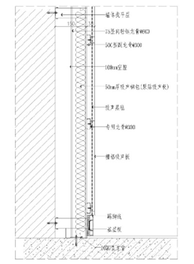
三、墻面方案
體育館容積大,且每座容積較大,很多情況下會部分觀眾缺席。因此,觀眾吸聲所占比率較小,為控制館內混響時間必須使用較多的吸音材料或者結構。并且大多數體育館由于座位升起、墻身開窗面積過大等狀況,場館內墻面可做聲學處理面積少,為此須充分利用好可做吸聲的墻面。設計擬用槽鋁吸聲結構對墻面進行聲學處理,使用面積4000㎡,后填≥50mm厚吸聲棉,預留空腔≥100mm。

槽鋁吸聲結構豎剖圖

槽鋁吸聲結構橫剖圖

體育館頂面聲學材料布置示意圖

體育館墻面聲學材料布置示意圖
空間吸聲體性能參數
結構:1.0mm厚以上鋁質邊框內置高密度吸聲棉,外包不燃玻纖布;
有害物質限量符合《建筑材料放射性核素限量》的全部技術指標的要求;
材料燃燒性能等級:A級;
環保等級達到《室內裝飾裝修材料人造板及其制品中甲醛釋放限量》標準E1級;
產品質量輕,對屋面結構荷載負擔小,搬運及安裝方便。

空間吸聲體產品圖片
槽鋁吸聲結構性能參數
結構:50mm厚吸聲棉包+吸聲黑氈+槽鋁吸音板
有害物質限量符合《建筑材料放射性核素限量》的全部技術指標的要求;
材料燃燒性能等級:A級;
環保等級達到《室內裝飾裝修材料人造板及其制品中甲醛釋放限量》標準E1級;
防潮:優質鋁材加工而成,防潮、防腐性能良好,易于清潔保養;

槽鋁吸聲結構產品圖片

岫巖縣體育館施工圖-1

岫巖縣體育館施工圖-2


掃一掃關注
微信公眾號
聲學材料
聲學設計
聲學整裝
新聞中心
關于我們
廣東天戈聲學集團有限公司
24小時客服熱線
400-0757-868
周一至周日:09:00-18:00
廣東省佛山市三水區白坭鎮聚金路16號